N° 050
Lotissement de 9 pavillons
Copropriété de 8 logements
N° 106
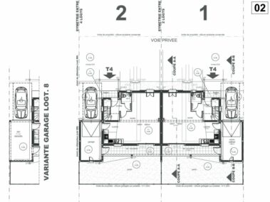
Copropriété de 4 logements
N° 116
Copropriété de 12 logements
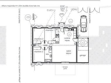
N° 142
Groupe de 8 maisons jumelées
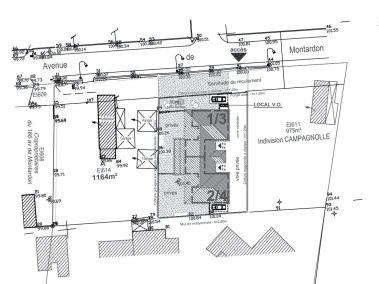
N° 173
Copropriété de 24 logements
N° 201
Copropriété de 4 logements
N° 140
Copropriété de 12 chalets
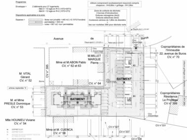
N° 251
Copropriété de 27 logements
N° 287


























































